
Pohjois-Pohjanmaan museo
14.10.2024
Merimiehen kotimuseon rakennushistoria jatkuu Oulun Pikisaaressa
Oulun arvokkaimpiin puurakennuksiin kuuluva Matilan talo haluttiin pitää jatkossakin museon näyttelytilana. Lisäksi kaupunkilaisille haluttiin tarjota mahdollisuus nauttia sen ainutlaatuisesta tunnelmasta ympäri vuoden. Pohjois-Pohjanmaan museo avusti hankkeen suunnittelussa ja valvoi sen toteutusta.
Matilan talon historiaa
Oulun vanhimpiin puutaloihin kuuluva Matilan talo on saanut nimensä siinä vuosina 1838–1898 asuneen merimies Isak Matilaisen mukaan. Talo on rakennettu 1737 alun perin Limingantulliin tullituvaksi. Tupa siirrettiin Oulun neljännen kaupunkipalon jälkeen Kirkkokadun ja Nummikadun kulmaan vuonna 1822. Siirto Pikisaareen tehtiin vuonna 1983.
Matilan talon asukashistoriasta löytyy monenlaista työläistä aina työnjohtajasta räätäliin. Talossa on pidetty historiansa aikana mm. maitokauppaa, osuusmeijerin maitomyymälää sekä modistin liikettä. Talo on siirtynyt Oulun kaupungin omistukseen Lauri Hautajärven perikunnalta vuonna 1965, ja museotoiminta Matilassa on aloitettu vuonna 1989.
Matilan talon vaiheet
- Rakennettu tullituvaksi Limingantien varteen 1737
- Siirretty Limingantullista osoitteeseen Kirkkokatu 38 Oulun IV kaupunkipalon jälkeen 1822
- Tupa vakiinnuttaa nimensä Matilan talona asukas Isak Matilaisen mukaan 1838–1898
- Siirretty Pikisaareen 1983
- Museotoiminta aloitettu 1989
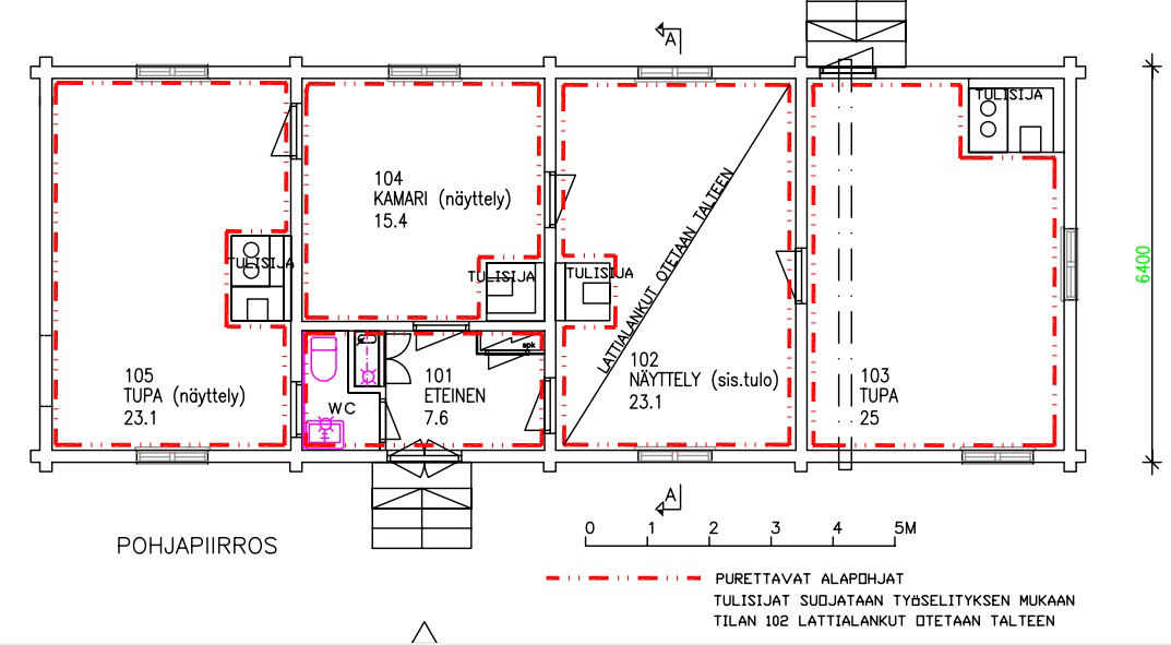
Matilan talon korjaukset vuosina 2016–2019
- Alapohjan purkaminen
- Ryömintätilan tyhjentäminen
- Koko rakennuksen nosto 20 cm
- Tulisijojen nosto 20 cm
- Alapohjan uudelleen rakentaminen
- Tarpeen mukaan tuuletusta lisäävän kosteudenhallintajärjestelmän asentaminen
- Lämmityksen toteuttaminen sähköisellä lattialämmityksellä aikaisemman patterilämmityksen sijasta
- Lähes kaikkien sisäpintojen uusiminen
Yhteistyössä on voimaa
Rakennusrestaurointiin erikoistunut työryhmä aloitti korjaustöiden suunnittelun vuonna 2016 Pohjois-Pohjanmaan museon avustuksella. Työryhmään kuuluneet osapuolet tunsivat toisensa aikaisemmista projekteista, joten suunnittelun yhteinen sävel löytyi heti.
Korjaustyöt tehtiin kahdessa osassa, ja ne aloitettiin syksyllä 2017. Urakan viimeistelytyöt tehtiin keväällä 2019 Oulun seudun ammattiopiston restaurointialan opiskelijoiden voimin. Merimiehen kotimuseo avasi ovensa yleisölle taas 7.6.2019.
Koska Matilan talo on museorakennus, modernia tekniikkaa sisältävä alapohjaratkaisu ja pihan puoleiselle sisäänkäynnille rakennettu pyörätuoliramppi olivat perusteltuja. Säilyttävän korjaamisen linjoista poikkeavat tekniset ratkaisut mahdollistivat näin museoesineenä säilytettävän rakenteen olemassaolon ja käytössä pysymisen.
Nostojen nosto
Alimpien hirsikerrosten vaihtaminen eli kengittäminen on normaali hirsirakennuksen ylläpidon toimenpide. Yleensä korjaamisen syynä ovat alimman hirsikerran lahovauriot. Koko rakennuksen nostaminen on poikkeuksellista mutta varteenotettava vaihtoehto esimerkiksi silloin, kun rakennuksen perustuspaikan olosuhteet muuttuvat alkuperäisestä tilanteesta.
Matilan siirtyessä Pikisaareen vuonna 1983 huomattiin, että uusi tontti viettää kaakkoon. Ongelmien välttämiseksi alapohjarakenne muutettiin siirron yhteydessä multipenkistä ryömintätilaiseksi alapohjaksi. Toteutus epäonnistui pääasiassa siksi, että rakennusrunko ei ollut riittävän korkea tuulettuvan alapohjan tarpeisiin.
Vuonna 2019 valmistuneessa korjauksessa ongelmat haluttiin välttää lisäämällä ryömintätilan korkeutta. Tärkeimpiä asioita toimivassa ryömintätilaisessa alapohjassa (ts. rossipohjassa) ovat hyvä tuulettuminen, kosteuden poistuminen ja alapohjan tiiveys. Rossipohja on oikein toteutettuna terveellinen ja turvallinen vaihtoehto rakennuksen alapohjaratkaisuksi.
Hirsirakentamisen ammattilaisen näkökulmasta Matilan talo on perinnerakentamiskohteena todella mielenkiintoinen.
”Monessakin hirsityökohteessa tulee nostotöitä, mutta vastaavia koko rakennuksen nostotöitä ei oikeastaan ole ollut. Toki pitkiä matkoja isoista rakennuksista on jouduttu nostamaan, mutta sellaista ei ole ollut, että koko alalle olisi uusittu tai lisätty parikymmentä senttiä puuta. Ainutkertainen kohde siinä mielessä.” - Juha Väyrynen, Puulastu Oy
Talon nostamisen seurauksena tulisijat jäivät tulevaa lattianpintaa alemmalle tasolle. Tällä kertaa työryhmä päätyi kokeilemaan normaalista poikkeavaa ratkaisua olemassa olevien rakenteiden säilyttämiseksi.
”Etukäteen ajateltuna tulisijojen nostaminen tuntui haastavimmalta ja se mietitytti, että minkälaista viritystä sinne joutuu tekemään. Mutta se onnistui yllättävän hyvin ja työtä helpotti todella paljon 80- luvulla muuratut harkkoperustukset tulisijojen alla. Harkkoihin saatiin porattua reikiä helposti niin, että tulisijojen alle saatiin metallipalkkeja, joiden avulla tulisijat nostettiin rakennuksen kanssa samaan tasoon.” - Juha Väyrynen, Puulastu Oy
Tulisijan nostaminen kokonaisena on harvinainen toimenpide ja vaati huolellisen suunnitelman lisäksi osaavat tekijät onnistuakseen. Tässä tapauksessa suunnitelma toimi ja tulisijat saatiin nostettua ilman rakenteellisia vaurioita. Tulisijojen päällä olleet hormit purettiin ennen nostoa ja muurattiin uudestaan noston jälkeen.
Nostotöiden jälkeen talolle rakennettiin tiiviimpi alapohja. Suunnitelmia tehtäessä työryhmä päätti varmistaa ryömintätilan tuulettuvuuden. Ryömintätilaan asennettiin ilmankosteutta tarkkaileva järjestelmä, joka säätää tuuletusta tarpeen mukaan.
Sisäseinien pintakäsittelyä 1980-luvun mallilla
Vuonna 1985 tehty sisäpintojen entisöinti oli dokumentoitu hyvin, joten uusien sabluunamaalausten suunnittelu saatiin helposti alulle. Silloin käytettyjä reseptejä pystyttiin noudattamaan lähes pilkuntarkasti. Liimamaalien sävyt ja savilastin koostumus vaativat paljon selvitystyötä, mutta molemmat onnistuivat lopulta hyvin.
Sabluunamaalaukset uusittiin eteisen oikealla puolella olevasta näyttelyhuoneesta. Eteisen oven vieressä oleva alkuperäinen, 1800-luvulta oleva sabluunamaalaus jätettiin näkyviin ja peitettiin lasilevyllä. Talon keittiön sabluunamaalaukset suojattiin rakennuksen noston ajaksi ja ovat siis peräisin vuodelta 1985.
Matilan korjaus on ollut kaikille osapuolille mielenkiintoinen kokonaisuus. Se on opettanut tekijöilleen uutta ja kertonut lisää talon historiasta.
”Koko projekti oli mielenkiintoinen tietenkin, kun en ole koskaan vastaavaa tehnyt. Siinä oppi hirveästi uutta, esimerkiksi sen saven tekemisen. Tietenkin on mukavaa, kun pystyy säilyttämään sitä rakennusperintöä. Pidän siitä, että jälkipolville säilyy mahdollisimman paljon menneisyydestä ja on kivaa, kun saa olla osana semmoista projektia.” Henna Rantakeisu, Turkansaaren ulkomuseo.
Restaurointi on prosessi, jossa asioita paljastuu sitä mukaa kuin työ etenee. Hankkeeseen ryhtyvillä osapuolilla on oltava kattavat alkutiedot restauroitavasta kohteesta. Suunnittelu pitää tehdä huolellisesti, mutta suunnitelman muutoksiin on syytä varautua työn edetessä. Tekijöiden yhteinen päämäärä ja arvot ovat edellytys onnistuneelle lopputulokselle.
Erityisesti perinnerakentamisessa tulee ottaa huomioon historian sitoutuminen rakennuksen aikakauteen ja materiaaleihin. Matilaan liittyvä aineeton kulttuuriperintö jatkuu siinä missä rakennushistoriakin, toivottavasti seuraavat sata vuotta eteenpäin.
Tekijät
Restaurointihanke
Matilan talon korjaustyö 2016–2019
Rakennuttaja: Liikelaitos Oulun tilakeskus
Pääurakoitsija: Puulastu Oy
Arkkitehtisuunnittelu: Arkkitehtitoimisto Ilpo Väisänen Oy
Rakennesuunnittelu: Insinööritoimisto Risto Linnakangas Oy
LVIA-suunnittelu: LVI suunnittelutoimisto J Taskinen Oy
Sähkösuunnittelu: Sähkösuunnittelu Hannu Seppälä
Näyteikkuna-julkaisu
Teksti: Maarit Niiranen
Kuvat: Maarit Niiranen ja Juha Väyrynen