Nykyaikainen, puurunkoisista kiintokalusteista koostuva keittiö kehittyi noin sata vuotta sitten. Vielä 1960-luvulla valtavirtaa olleet puu- ja vanerirakenteiset keittiöt ovat säilytettävissä ja helposti muokattavissa uusiin tarpeisiin.
Sunilassa työväestön asuntoja
Sunilan selluloosatehtaan asuinalueella valmistui vuonna 1937 ensimmäisten rakennusten joukossa kaksi kaksikerroksista lamellitaloa, Honkala ja Mäntylä. Niiden 30 neliön yksiöt ja 45 neliön kaksiot olivat valmistuessaan alueen asuinnoista pienimmät. Aino ja Alvar Aallon suunnittelemasta Sunilasta muodostui sodanjälkeisten lähiöiden esikuva.
Kuva 2: Honkalan maaston mukaan porrastuvissa asuntolamelleissa on portaan kerrostasoa kohden kaksi kaksiota välissään yksiö. (Kuva Jonas Malmberg)
Talot muuttuivat osakeyhtiöiksi 1980-luvulla, minkä jälkeen huoneistojen muutosten tahti eriytyi. Suuri yhteinen hanke oli LVIS-saneeraus 2002–2003. Tällöin moniin asuntoihin lisättiin suihkut arkkitehti Tapani Mustosen suunnitelmien mukaisesti. Kaksioissa kekseliäs lasitiiliseinäinen uusi suihkusyvennys vei kuitenkin osan alkuperäisen keittiökalusteen tilasta.
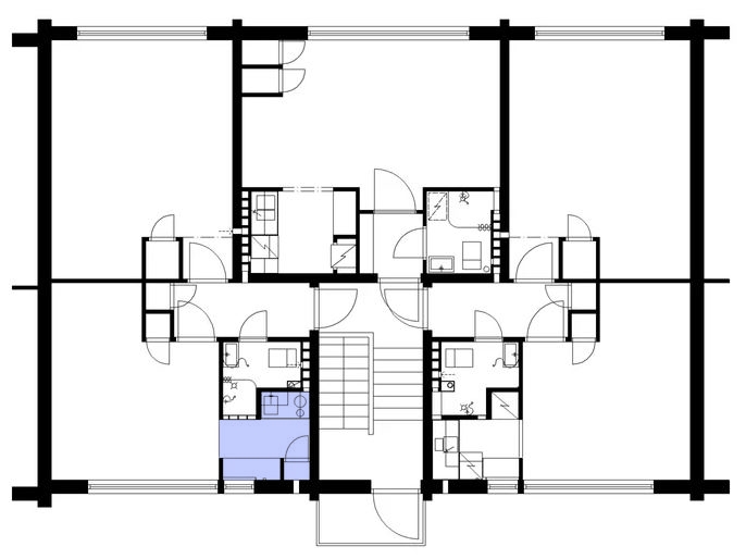
Kuvat 3: Esiteltävän keittiökorjauksen lähtötilanne oli vuoden 2002–2003 linjasaneerauksen synnyttämä ratkaisu, jossa osa keittiöstä oli lohkaistu suihkutilaksi. (Pohjapiirustus Tapani Mustonen.)
Kuva 4: Tilanne ennen keittiökorjausta. Alkuperäiset kaapit WC:n vastaisella seinällä oli linjasaneerauksessa korvattu uusilla. (Valokuva kunnostajalta
Nykyaikaisen keittiön synty
Keittiöiden varustustaso kohentui Suomessa nopeasti itsenäistymisen jälkeen, kun sähkö ja juokseva lämmin vesi yleistyivät. Puurakenteisiin kiintokalusteisiin perustuneet keittiöt kehittyivät työn tehostamistavoitteiden myötä 1920-luvulta alkaen. Keskustelua käytiin niin ammattilais- kuin aikakauslehdistössä, vaikutteita haettiin varsinkin Ruotsista.
Ajatukset kehittyivät useilla tahoilla, mutta funktionalistisen pienkeittiön esikuvana pidetään Frankfurt-keittiöksi kutsuttua itävaltalaisarkkitehti Margarete Schütte-Lihotzkyn suunnitelmien mukaan 1926 valmistettua, yhden ihmisen työskentelymittoihin optimoitua keittiötä.
Kuvat 5-6: Marttayhdistyksen näyttely Helsingissä vuonna 1924 esitteli arkkitehti Elna Kiljanderin suunnitteleman keittiön, joka on koottu ruotsalaisen kansallisen komitean suosituksen mukaisista standardiosista. (Kuvat: Arkkitehti 1/1925)
Kuva 7: Salme Setälän kirja Keittiön sisustus esitteli kansainvälisiä esimerkkejä sekä kotitaloustyön ajanmukaista ergonomiaa suomeksi vuonna 1931.
Kuva 8: Setälän kirjan kuvituksessa oli muun muassa saksalaisarkkitehti Bruno Tautin suunnittelema keittiö.
Funktionalismista kiinnostuneet arkkitehdit, Aino ja Alvar Aalto etunenässä, propagoivat moderneja asumisen ajatuksia Suomessa. Vuonna 1929 he osallistuivat pienasuntoja käsitelleeseen arkkitehtien kansainväliseen CIAM‑kokoukseen (Congres Internationaux d'Architecture Moderne) Frankfurtissa ja pääsivät soveltamaan omaksumiaan ajatuksia käytännössä työväenasuntosuunnitelmissaan 1930-luvulla – muun muassa Sunilassa.
Kuva 9: Aino Aallon 1920–1930-luvulla laatima esimerkkikeittiön kaavio, jonka ilmeisen kansainvälinen käyttötarkoitus on tuntematon. (Alvar Aalto -säätiö)
Keittiökorjauksen tavoite
Vuonna 1937 valmistunut esimerkkikeittiömme Sunilassa on lajinsa pioneerijoukkoa Suomessa. Siten sen alkuperäisten osien säilyttäminen ja hävitettyjen korvaaminen alkuperäisen ilmeen mukaisina oli omistaja–rakentajalle ilmiselvä tavoite. Lisäksi hän halusi kohtuulliset nykyaikaiset toiminnot sekä korjauskelpoiset ja ylläpidettävät ratkaisut.
Niinpä linjasaneerauksessa asennetut lastulevykaapit ja alkuperäisen umpikoivutason korvannut laminaattitaso saivat väistyä uusien kokopuisten tilalta.
Kuva 10: Keittiökunnostuksen tavoitteena oli kunnostaa ikkunan edustalla säilynyt alkuperäinen kaluste sekä tehdä uusi kaluste alkuperäisellä tavalla paikalle, jossa oli uudempi lastulevyrakenteinen kaluste.
Kuvat 11-12: Korjauksen keskeisenä tietolähteenä toimineet keittiön alkuperäispiirustukset on talletettu Alvar Aalto -säätiön arkistoon. (Alvar Aalto -säätiö)
Kunnostettava kaluste
Ikkunan puolella säilyneen alkuperäisen alakaapin korjaaja irrotti ja vei autotalliin kunnostettavaksi.
Kuva 13: Säilyneen keittiökaapin kokopuinen runko matkalla kunnostukseen. (Kuva kunnostajalta)
Kuluvien osien korvaaminen oli alkuperäisessä suunnitelmassa tehty helpoksi, mutta monet maalikerrokset ja varsinkin lateksit olivat vahingoittaneet puuosia. Useimmat maalipinnat irtosivat melkeinpä vahingossa pohjiaan myöten, mutta kaikista puuosista löytyi vahva puuaines viimeistään pienen hionnan jälkeen.
Kuva 14: Kaikki alkuperäiset materiaalit olivat kunnostuskelpoisia. (Kuva kunnostajalta)
Kuva 15: Vetolaatikoidenkin osat voitiin koota uudestaan. (Kuva kunnostajalta)
Kuva 16: Vanhan kaapinoven reuna maalinposton jälkeen. (Kuva kunnostajalta)
Kuva 17: Alkuperäinen kaapin runko kunnostettuna valmiina hyllyn, ovien ja laatikoiden asennusta varten. (Kuva kunnostajalta)
Kuva 18: Alkuperäiset kaapin ovet odottamassa maalausta. (Kuva kunnostajalta)
Kuva 19: Vanhan oven sisäpinnan alkuperäinen maalipinta pienine viiluvaurioineen sai jäädä kertomaan historiasta. Vuosien varrella vaihtuneen leikkuulaudan palauttaminen alkuperäissuunnitelman mukaiseksi on vielä mietinnässä – ja mittoihin sopiva koivumateriaali etsinnässä. (Kuva Jonas Malmberg)
Kuva 20: Jätevaunu lajittelupisteineen sekä mikroaaltouuni mahtuivat hyvin alkuperäisenä säilyneeseen korkeaan kylmäkomeroon. (Kuva Jonas Malmberg)
Alun perin toteutuneen pöytätason yksityiskohdista ei ollut enää tietoa, mutta kierrätystavarana löytyneestä pöytätasosta syntyi alkuperäispiirustuksen detaljeja vastaava taso ikkunan eteen.
Uusi allas- ja yläkaappi
Uusissa kalusteissa korjaaja yhdisti 1930-luvulla tehtyjen kalusteiden ratkaisuja ja Aallon toimiston laatimia keittiöpiirustuksia. Alvar Aalto -säätiön arkistosta saadut piirustukset eivät täysin vastanneet toteutettuja yksityiskohtia, joista monet oli ratkottu arkkitehtien suunnitelmia yksinkertaisemmin. Yhdeksi ongelmaksi muodostui, ettei tarkalleen alkuperäisten mittojen mukaisia puumateriaaleja ollut enää saatavissa. Siten uusien kaappien rungoista tuli 3 mm alkuperäistä ohuempia.
Kuva 21: Uusi alkuperäistä mukaileva yläkaappi vaneriovineen valmistumassa autotalliverstaalla. (Kuva kunnostajalta)
Kuva 22: Yläkaapissa ei vielä 1930-luvulla ollut sittemmin vakiintuneita valutusritilöitä, mutta nykyaikainen metalliritilä kaukaloineen ratkaisi kysymyksen siten, ettei alkuperäisestä runkorakenteen ajatuksesta tarvinnut poiketa. (Kuva Jonas Malmberg)
Kuva 23: Yläkaapissa ei Kuva 23: Uusi astianpesukone piiloutuu allastason alle, uuden kaapin parioven taakse. Välitilaan valittu 1960-luvun valaisin antaa tarkalle katsojalle vinkin, ettei alkuperäiskeittiön altaan yllä ollut erillistä valaisinta. (Kuva Jonas Malmberg)
Lopputulos
Uudet vaneri- ja liimapuurakenteiset kaapit syntyivät käsityönä autotallissa. ”Tunteja kului myös opetteluun, mutta seuraavat kaapit syntyisivät nyt paljon nopeammin”, korjaaja pohtii. Kaikkia nykyajan mukavuuksia ei minikeittiöön saatu mahdutettua – jääkaappi sijoitettiin ruokailutilan puolelle vapaasti seisovana.
Uudet kalusteet muodostavat ehyen kokonaisuuden yhdessä alkuperäisten osien kanssa. Ne syntyivät omana työnä ja autotalliverstaan varustuksiin sopivilla välineillä. Käytetty puumateriaali saattoi olla levyrakenteita hieman kalliimpaa, mutta pitkällä aikavälillä kestävien materiaalien käyttö on edullista. Vanhat keittiökalusteet viettävät pian 90-vuotisjuhlaansa, ja uusienkin voi olettaa saavuttavan nykyaikaisia lastulevy- ja mdf-kalusteita pidemmän elinkaaren.
Kuvat 24-25: Keittiön kunnostus viimeisteltiin korvaamalla edellisessä korjauksessa paikalle tuotu pallovalaisin vanhoista valokuvista tunnistetun 1930-luvun mallin mukaisella.
Lähteitä:
G. N. ”Mallikeittiöitä”. Rakennustaito 25/1924, 251–255; Rakennustaito 26/1924, 259–262.
S. Lbg; S-s. ”Standardikeittiöt”. Arkkitehti 1/1925, 6–11.
Segerståle, Ellen. ”Tarkoituksenmukaisista kaupunkilaiskeittiöistä”. Kotiliesi
7/1924, 171–174.
Setälä Salme. Keittiön sisustus. Otava. 1931.
Kuva 2: Honkalan maaston mukaan porrastuvissa asuntolamelleissa on portaan kerrostasoa kohden kaksi kaksiota välissään yksiö. (Kuva Jonas Malmberg)
Kuvat 3: Esiteltävän keittiökorjauksen lähtötilanne oli vuoden 2002–2003 linjasaneerauksen synnyttämä ratkaisu, jossa osa keittiöstä oli lohkaistu suihkutilaksi. (Pohjapiirustus Tapani Mustonen.)
Kuva 4: Tilanne ennen keittiökorjausta. Alkuperäiset kaapit WC:n vastaisella seinällä oli linjasaneerauksessa korvattu uusilla. (Valokuva kunnostajalta
Kuvat 5-6: Marttayhdistyksen näyttely Helsingissä vuonna 1924 esitteli arkkitehti Elna Kiljanderin suunnitteleman keittiön, joka on koottu ruotsalaisen kansallisen komitean suosituksen mukaisista standardiosista. (Kuvat: Arkkitehti 1/1925)
Kuva 7: Salme Setälän kirja Keittiön sisustus esitteli kansainvälisiä esimerkkejä sekä kotitaloustyön ajanmukaista ergonomiaa suomeksi vuonna 1931.
Kuva 8: Setälän kirjan kuvituksessa oli muun muassa saksalaisarkkitehti Bruno Tautin suunnittelema keittiö.
Kuva 9: Aino Aallon 1920–1930-luvulla laatima esimerkkikeittiön kaavio, jonka ilmeisen kansainvälinen käyttötarkoitus on tuntematon. (Alvar Aalto -säätiö)
Kuva 10: Keittiökunnostuksen tavoitteena oli kunnostaa ikkunan edustalla säilynyt alkuperäinen kaluste sekä tehdä uusi kaluste alkuperäisellä tavalla paikalle, jossa oli uudempi lastulevyrakenteinen kaluste.
Kuvat 11-12: Korjauksen keskeisenä tietolähteenä toimineet keittiön alkuperäispiirustukset on talletettu Alvar Aalto -säätiön arkistoon. (Alvar Aalto -säätiö)
Kuva 13: Säilyneen keittiökaapin kokopuinen runko matkalla kunnostukseen. (Kuva kunnostajalta)
Kuva 14: Kaikki alkuperäiset materiaalit olivat kunnostuskelpoisia. (Kuva kunnostajalta)
Kuva 15: Vetolaatikoidenkin osat voitiin koota uudestaan. (Kuva kunnostajalta)
Kuva 16: Vanhan kaapinoven reuna maalinposton jälkeen. (Kuva kunnostajalta)
Kuva 17: Alkuperäinen kaapin runko kunnostettuna valmiina hyllyn, ovien ja laatikoiden asennusta varten. (Kuva kunnostajalta)
Kuva 18: Alkuperäiset kaapin ovet odottamassa maalausta. (Kuva kunnostajalta)
Kuva 19: Vanhan oven sisäpinnan alkuperäinen maalipinta pienine viiluvaurioineen sai jäädä kertomaan historiasta. Vuosien varrella vaihtuneen leikkuulaudan palauttaminen alkuperäissuunnitelman mukaiseksi on vielä mietinnässä – ja mittoihin sopiva koivumateriaali etsinnässä. (Kuva Jonas Malmberg)
Kuva 20: Jätevaunu lajittelupisteineen sekä mikroaaltouuni mahtuivat hyvin alkuperäisenä säilyneeseen korkeaan kylmäkomeroon. (Kuva Jonas Malmberg)
Kuva 21: Uusi alkuperäistä mukaileva yläkaappi vaneriovineen valmistumassa autotalliverstaalla. (Kuva kunnostajalta)
Kuva 22: Yläkaapissa ei vielä 1930-luvulla ollut sittemmin vakiintuneita valutusritilöitä, mutta nykyaikainen metalliritilä kaukaloineen ratkaisi kysymyksen siten, ettei alkuperäisestä runkorakenteen ajatuksesta tarvinnut poiketa. (Kuva Jonas Malmberg)
Kuva 23: Yläkaapissa ei Kuva 23: Uusi astianpesukone piiloutuu allastason alle, uuden kaapin parioven taakse. Välitilaan valittu 1960-luvun valaisin antaa tarkalle katsojalle vinkin, ettei alkuperäiskeittiön altaan yllä ollut erillistä valaisinta. (Kuva Jonas Malmberg)
Kuvat 24-25: Keittiön kunnostus viimeisteltiin korvaamalla edellisessä korjauksessa paikalle tuotu pallovalaisin vanhoista valokuvista tunnistetun 1930-luvun mallin mukaisella.